Home
Download PDF
Order CD-ROM
Order in Print
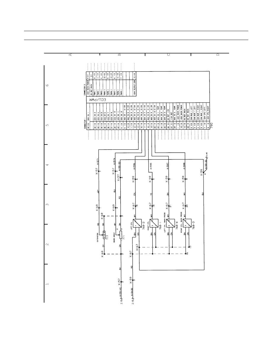
Figure 2. ECS Electrical Servo (A34648.0200) Page 4 of 5.
Figure 3. ECS Engine (A34649.0200) Page 1 of 2.
TM-10-3930-675-24-1 Rough Terrain Container Handler (RTCH): RT 240; 53 000 Lb Capacity; 4x4 Manual
Page Navigation
713
714
715
716
717
718
719
720
721
722
723
TM
10-3930-675-24-1
DIAGRAMS
-
CONTINUED
0048
00
350-1091
Figure
2. ECS
Electrical
Servo
(A34648.0200)
Page
5 of 5.
0048
00-9